Secadora de chapa de madera de 40 m
La máquina secadora de chapa de madera Shandong Shine de 2 pisos y 40 m adopta un control de conversión de frecuencia, que puede ajustar la velocidad de transmisión y la temperatura de acuerdo con los diferentes espesores de chapa y contenido de humedad para lograr el efecto de secado ideal. Baja tasa de fallas y reducción del tiempo de inactividad.
Grosor de la chapa: 0,6-8 mm
Humedad del agua de la chapa: Chapa fresca hasta alrededor del 10%
Consumo de electricidad real:Alrededor de 110kwh por hora
Introducción de producto de Máquina secadora de chapa de madera de 40 m
La máquina secadora de chapa de madera de 40 m tiene las ventajas de alta eficiencia, ahorro de energía y buena calidad de secado debido a la adopción de nueva alta tecnología y tecnología de control avanzada. El ancho de trabajo de Roller Veneer Dryer es de 3 metros y puede secar de 0,6 a 8 mm, el mínimo se puede secar a 0.
La capacidad de secado de la secadora de chapa de madera de 40 m puede alcanzar los 2,5 m³ por hora. La máquina secadora de chapa consta de entrada, área de secado, área de enfriamiento, salida. El tamaño de secado se personaliza de acuerdo con la capacidad de producción, el proceso y el espacio.
Máquina secadora de chapa en fábrica de clientes de Zimbabue
Máquina secadora de chapa en la fábrica de clientes de Congo
Quemador de biomasa
El quemador de biomasa, un producto patentado desarrollado de forma independiente por nuestra empresa, puede usar directamente residuos de madera triturada como combustible para proporcionar una fuente de calor para la secadora, que ahorra energía y es respetuosa con el medio ambiente, y reduce en gran medida el costo de secado.
Quemador de biomasa
Ventajas de 40 m de máquina secadora de chapa de madera
1 、 El sistema de intercambio de calor bien desarrollado mejora completamente la tasa de utilización de energía y ahorra el desperdicio de energía innecesario. Ha obtenido la patente de invención nacional.
2. El gabinete de control tiene control automático de temperatura y sistema de regulación de velocidad, que puede controlar con precisión el contenido final de humedad. Operación simple y baja tasa de fallas.
3. La temperatura en el quemador es 40-60 ℃ más alta que la del secador tradicional (vapor, aceite térmico), y la temperatura se controla a 140-180 ℃, lo que acorta el tiempo de secado y aumenta la producción.
4. Después del secado, la chapa queda lisa, sin grietas, arrugas ni ondulaciones en los extremos.
5. La contracción y el endurecimiento se mantienen al mínimo y se evitan el colapso de la chapa y la estructura de panal.
6. Contamos con un equipo profesional de I+D que puede diseñar diferentes modelos de acuerdo con los requisitos especiales del cliente.
7. El equipo de servicio posventa perfecto puede brindar un servicio en línea las 24 horas.
Cadena secadora de chapa, Chapa rodante, Salida
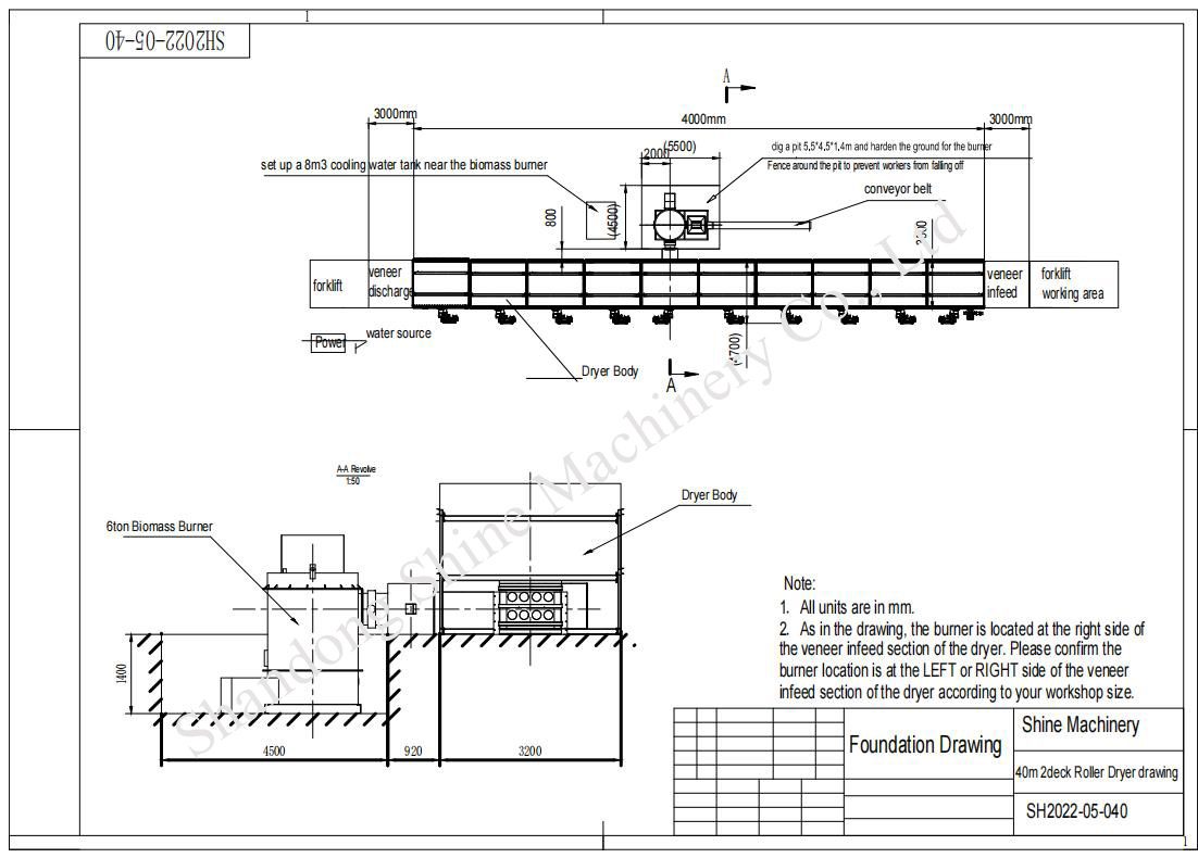
Plano de disposición de la máquina secadora de chapa de madera de 40 m
¿Todavía le preocupa la mala calidad de la chapa seca? Elija nuestro secador de chapa, la chapa seca es de buena calidad y rentable.
Vídeo del sitio del cliente
Máquina secadora de chapa de madera de 2 pisos de 40 m en cliente de indonesia
Parámetros del producto de Máquina secadora de chapa de madera de 40 m
Nº de modelo |
GTH30-40 |
Anchura de trabajo |
3m |
Cubierta |
2 |
Longitud del área de calentamiento |
36m |
Longitud del área de enfriamiento |
4m |
Espesor de chapa |
0,6-8 mm |
Humedad del agua de chapa |
Chapa fresca hasta alrededor del 10% |
Material de calentamiento y secado la temperatura |
Residuos de madera, 140-200 ℃ ajustable. Hay un sistema automático de control de temperatura y regulación de velocidad, que puede garantizar que el contenido de humedad sea constante. |
Capacidad de secado (m³/día) |
55-65cbm |
Velocidad de transporte de chapa |
5-22 m/min, cadena 16A |
soplador de aire caliente |
Potencia: 11KW (9 piezas) |
El motor de tracción |
Potencia: 7,5 KW, control de frecuencia (2 piezas) |
soplador de aire frio |
Potencia: 11KW (1 pieza) |
Ventilador de admisión de aire |
Potencia: 11KW (2 piezas) |
Quemador de biomasa de 4 toneladas |
Poder: 16.5KW |
Poder total |
163.5KW |
Consumo eléctrico real |
Alrededor de 110kwh por hora |
Caso del proyecto
Máquina secadora de chapa de un cliente de Myanmar
Nuestro Certificado
Partes del secador de chapa
Nuestros servicios
1. De acuerdo con los requisitos especiales de los clientes, ofrecemos un plan razonable y un diseño gratuito para ayudar a seleccionar el equipo.
2. Bienvenido a visitar nuestra fábrica
3. Inspeccione la máquina antes de salir de fábrica.
4. Oversea instalar y depurar el equipo
5.Capacitar al operador de primera línea.
6. Proporcione el VIDEO con la instalación y depuración del equipo
7. Proporcionar intercambio técnico
8. Es posible el servicio puerta a puerta.
Embalaje y transporte de productos
Otro producto de máquina secadora de chapa de madera de 40 m
Alimentador automático de chapas y sistema automático de recogida de chapas













